Адрес офиса
Улан-Удэ, Н.Петрова 70 офис 309, "Бизнес Лайф"
Адрес производства
ул. Николая Нищенко 19а
Телефоны
+7 3012 206320
многоканальный
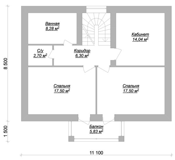
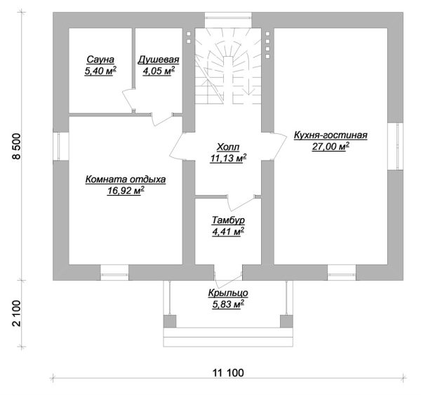
113,39 м² ThermoBlock комнат 9 спален 2 этажа 1.5 санузла 5

Проект дома B-047

Двухэтажный дом из термоблока с собственной сауной. Первый этаж: кухня-гостиная 27,0 м², комната отдыха 16,9 м², сауна 5,4 м², душевая 4,1 м², холл 11,1 м², тамбур 4,4 м², крыльцо 5,8 м². Второй этаж: две спальни по 17,5 м², кабинет 14,0 м², ванная 8,3 м², санузел 2,7 м², коридор 6,3 м², балкон 5,8 м². Энергоэффективные стены из термоблока. Идеален для любителей здорового образа жизни и семейного отдыха.

Особенности

  • Сейсмостойкий
  • Энергоэффективный
  • Быстрый монтаж
  • Технологичный
Звоните +7 (3012) 20-63-20
Пишите info@thermoblock.ru