Адрес офиса
Улан-Удэ, Н.Петрова 70 офис 309, "Бизнес Лайф"
Адрес производства
ул. Николая Нищенко 19а
Телефоны
+7 3012 206320
многоканальный
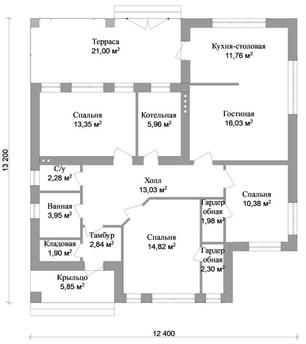
84,71 м² ThermoBlock комнат 11 спален 3 этажа 1 санузла 2 терасса

Проект дома B-058

Вместительный одноэтажный дом из термоблока площадью около 100–110 м². Планировка включает: гостиную 16,0 м², кухню-столовую 11,8 м², две спальни (14,8 м² и 13,4 м²), ванную 4,0 м², санузел 2,3 м², котельную 6,0 м², гардеробную 10,4 м², кладовую 1,9 м², холл 13,0 м², тамбур 2,8 м², крыльцо 5,9 м² и просторную террасу 21,0 м². Идеален для большой семьи. Отличное зонирование: спальни изолированы, большая гардеробная и кладовая решают вопросы хранения. Огромная терраса — для летнего отдыха и приема гостей.

Особенности

  • Сейсмостойкий
  • Энергоэффективный
  • Быстрый монтаж
  • Технологичный
Звоните +7 (3012) 20-63-20
Пишите info@thermoblock.ru