Адрес офиса
Улан-Удэ, Н.Петрова 70 офис 309, "Бизнес Лайф"
Адрес производства
ул. Николая Нищенко 19а
Телефоны
+7 3012 206320
многоканальный
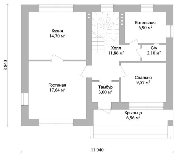
- м² ThermoBlock комнат 0 спален 0 этажа - санузла 0

Проект дома C-023

Особенности

  • Сейсмостойкий
  • Энергоэффективный
  • Быстрый монтаж
  • Технологичный
Звоните +7 (3012) 20-63-20
Пишите info@thermoblock.ru