Адрес офиса
Улан-Удэ, Н.Петрова 70 офис 309, "Бизнес Лайф"
Адрес производства
ул. Николая Нищенко 19а
Телефоны
+7 3012 206320
многоканальный
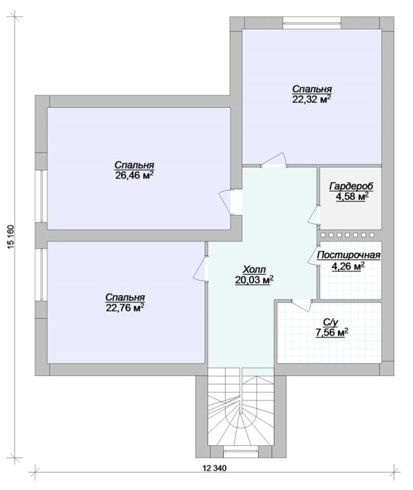
221,08 м² ThermoBlock комнат 14 спален 3 этажа 2 санузла 2 терасса

Проект дома E-056

Уютный дом из термоблоков для семьи, ценящей порядок и функциональность. Первый этаж объединяет гостиную с выходом на террасу, кухню, кабинет, холл, санузел, тамбур и крыльцо. На верхнем этаже расположены три спальни, гардеробная, постирочная, холл и санузел. Такая планировка позволяет работать или принимать гостей на первом этаже, не тревожа отдыхающих в спальнях. Наличие постирочной и гардеробной на втором этаже упрощает ведение быта. Идеальное решение для семьи с детьми или работающими родителями.

Особенности

  • Сейсмостойкий
  • Энергоэффективный
  • Быстрый монтаж
  • Технологичный
Звоните +7 (3012) 20-63-20
Пишите info@thermoblock.ru