Адрес офиса
Улан-Удэ, Н.Петрова 70 офис 309, "Бизнес Лайф"
Адрес производства
ул. Николая Нищенко 19а
Телефоны
+7 3012 206320
многоканальный
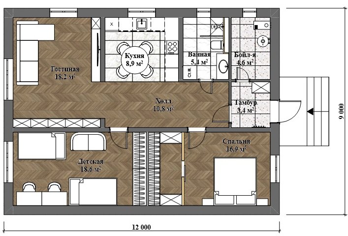
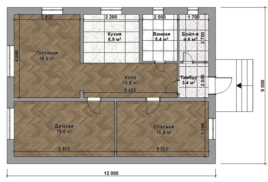
108,00 м² ThermoBlock комнат 3 спален 2 этажа 1 санузла 1

Еравна 108

«Еравна-108» — продуманный дом для семьи, где ценят раздельное пространство. В отличие от многих современных проектов, здесь гостиная и кухня не совмещены, а расположены отдельно — это удобно для тех, кто любит чёткое зонирование. Внутри: уютная спальня, просторная детская комната (хватит места и для игр, и для учёбы), совмещённый санузел и отдельная котельная. Стены выполнены по технологии несъемной опалубки ThermoBlock — это значит, дом возводится быстро, не требует дополнительного утепления, отлично держит тепло зимой и прохладу летом. Отопление — электрические тёплые полы по всему дому. Никаких радиаторов, сухой воздух, равномерное тепло без сквозняков. Идеальный вариант для семьи, которая хочет современный, энергоэффективный и уютный дом.

Особенности

  • Сейсмостойкий
  • Энергоэффективный
  • Быстрый монтаж
  • Технологичный
Звоните +7 (3012) 20-63-20
Пишите info@thermoblock.ru