Адрес офиса
Улан-Удэ, Н.Петрова 70 офис 309, "Бизнес Лайф"
Адрес производства
ул. Николая Нищенко 19а
Телефоны
+7 3012 206320
многоканальный
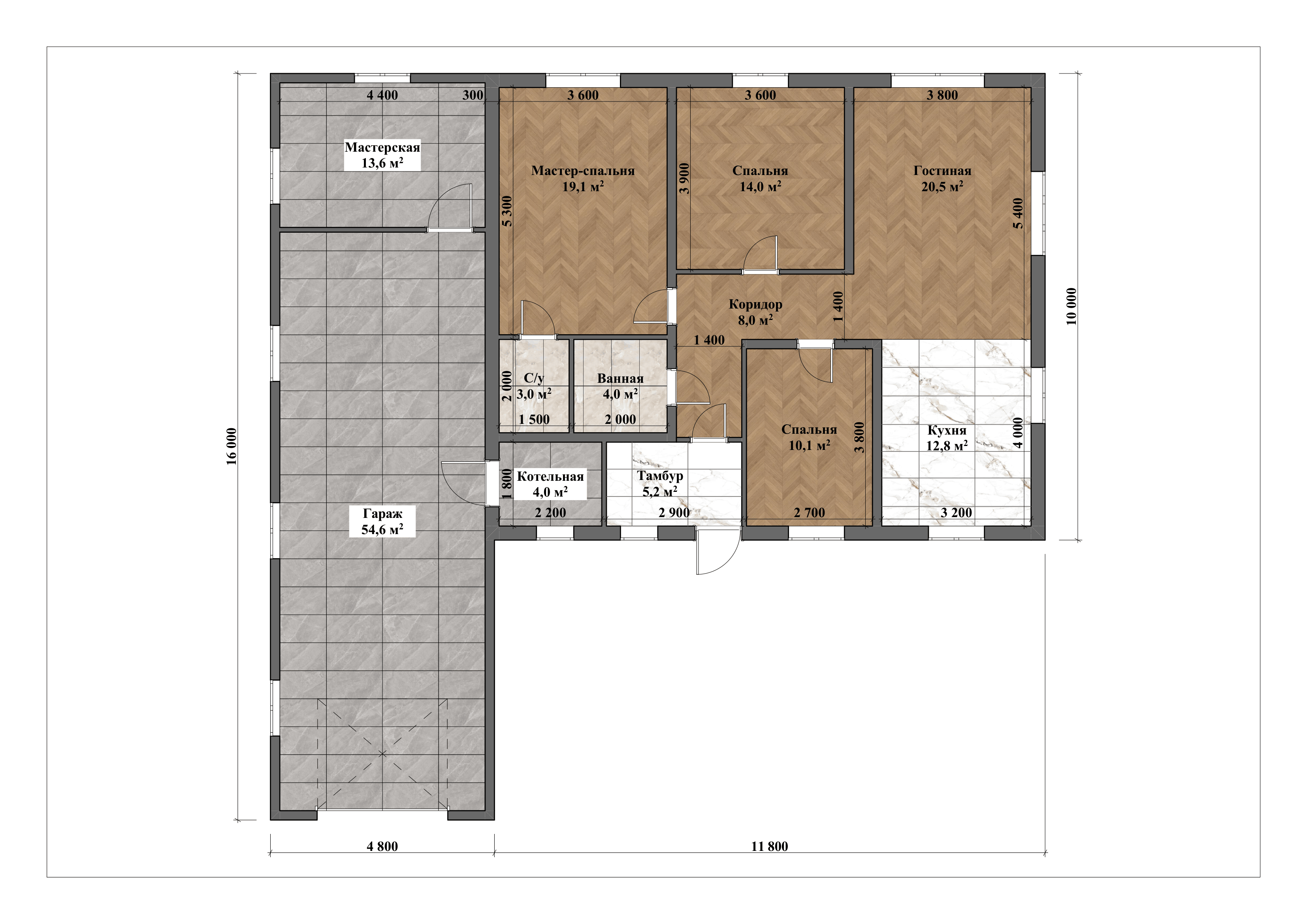
110,00 м² ThermoBlock комнат 4 спален 3 этажа 1 санузла 2 гараж

Багульник 110

«Багульник 110» — это дом, продуманный до мелочей для семьи из четырёх человек. Здесь комфортно всем: и родителям, и детям, и даже автомобилю с инструментами.

Гараж примыкает к дому и имеет прямой проход внутрь — зимой не нужно выходить на холод. В гараже предусмотрено помещение под мастерскую или кладовку.

Для родителей — мастер-спальня с отдельным совмещённым санузлом. Для детей — две уютные спальни поменьше и второй совмещённый санузел, который выходит в коридор.

Сердце дома — просторная кухня, совмещённая с гостиной. Здесь есть место для камина — уютные семейные вечера гарантированы.
На входе — тамбур, защищающий от сибирских морозов. Из тамбура есть проход в котельную и в гараж — всё логично и удобно.

Стены выполнены по технологии несъемной опалубки ThermoBlock.

«Багульник 110» — дом, где большая семья живёт свободно, а всё необходимое находится под рукой.

Особенности

  • Сейсмостойкий
  • Энергоэффективный
  • Быстрый монтаж
  • Технологичный
Звоните +7 (3012) 20-63-20
Пишите info@thermoblock.ru