Адрес офиса
Улан-Удэ, Н.Петрова 70 офис 309, "Бизнес Лайф"
Адрес производства
ул. Николая Нищенко 19а
Телефоны
+7 3012 206320
многоканальный
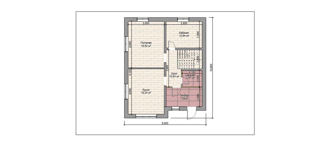
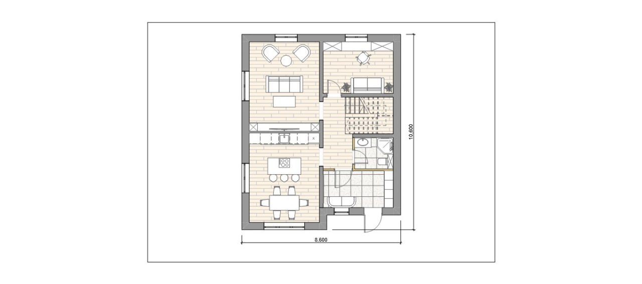
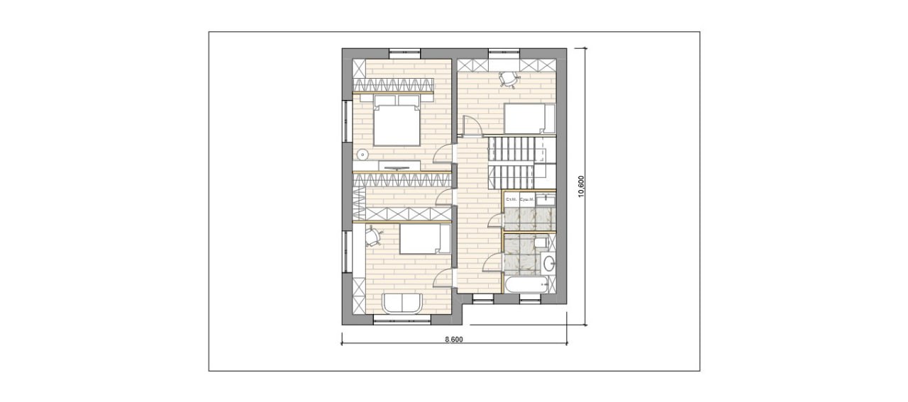
165,00 м² ThermoBlock комнат 5 спален 3 этажа 2 санузла 2

Байкал 160

Дом Байкал 160 спроектирован для сурового климата Сибири и Крайнего Севера. Продуманная система тамбуров исключает прямой контакт морозного воздуха с жилыми помещениями.
Отопление организовано тёплыми электрическими полами, что исключает котельную, выигрывая полезную площадь. Теплые полы работают зонально: можно обогревать только используемые комнаты. Система не требует сложного обслуживания. Дом из ThermoBlock экономит энергию и надёжен в условиях сильных ветров и морозов.

Особенности

  • Сейсмостойкий
  • Энергоэффективный
  • Быстрый монтаж
  • Технологичный
Звоните +7 (3012) 20-63-20
Пишите info@thermoblock.ru