Адрес офиса
Улан-Удэ, Н.Петрова 70 офис 309, "Бизнес Лайф"
Адрес производства
ул. Николая Нищенко 19а
Телефоны
+7 3012 206320
многоканальный
248,82 м² ThermoBlock комнат 15 спален 3 этажа 2 санузла 2 гараж терасса

Проект дома E-061

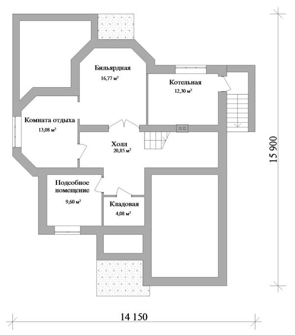
Дом из термоблоков с продуманным разделением на зоны отдыха, дневную и приватную. Цокольный этаж отведён под досуг и технику: бильярдная, комната отдыха, котельная, кладовая и подсобное помещение. Первый этаж объединяет гостиную, столовую, кухню, холл, тамбур, крыльцо, гараж и террасу. Верхний этаж — спальная зона: три спальни, гардеробная, ванная, санузел, холл и два балкона. Идеальный дом для семьи, которая любит принимать гостей, играть в бильярд и отдыхать на свежем воздухе, сохраняя при этом комфорт и порядок.

Особенности

  • Сейсмостойкий
  • Энергоэффективный
  • Быстрый монтаж
  • Технологичный
Звоните +7 (3012) 20-63-20
Пишите info@thermoblock.ru