Адрес офиса
Улан-Удэ, Н.Петрова 70 офис 309, "Бизнес Лайф"
Адрес производства
ул. Николая Нищенко 19а
Телефоны
+7 3012 206320
многоканальный
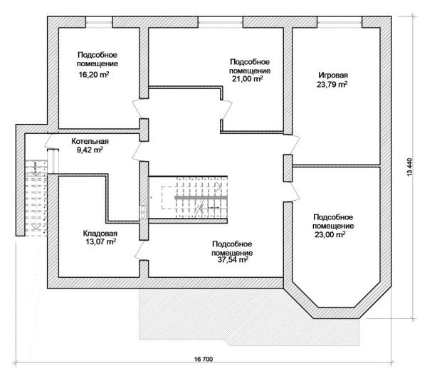
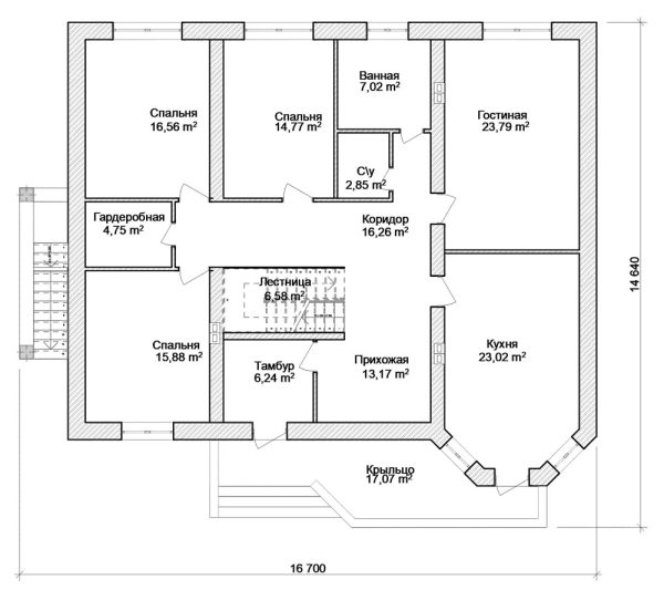
288,33 м² ThermoBlock комнат 18 спален 3 этажа 1 санузла 1

Проект дома E-062

Дом из термоблоков с удобным разделением на жилую, рекреационную и техническую зоны. Первый этаж включает гостиную, спальню, прихожую, тамбур, крыльцо и коридор с лестницей. Верхний этаж отведён под две спальни и ванную. Цокольный этаж предназначен для досуга и хозяйства: здесь расположены игровая, котельная, кладовая и несколько подсобных помещений. Такая планировка позволяет детям играть внизу, не мешая отдыху взрослых наверху, а все технические помещения вынесены за пределы жилой зоны. Идеально для семьи с детьми.

Особенности

  • Сейсмостойкий
  • Энергоэффективный
  • Быстрый монтаж
  • Технологичный
Звоните +7 (3012) 20-63-20
Пишите info@thermoblock.ru