Адрес офиса
Улан-Удэ, Н.Петрова 70 офис 309, "Бизнес Лайф"
Адрес производства
ул. Николая Нищенко 19а
Телефоны
+7 3012 206320
многоканальный
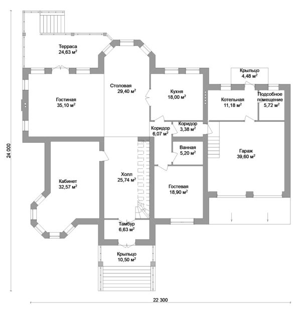
397,16 м² ThermoBlock комнат 23 спален 3 этажа 2 санузла 2 гараж терасса

Проект дома F-009

Дом из термоблоков с продуманным разделением на дневную и ночную зоны. Первый этаж включает гостиную, столовую, кухню, большой кабинет, гостевую комнату, холл, ванную, тамбур, два крыльца, гараж и террасу. Верхний этаж отведён под приватную часть: три спальни, два кабинета, две гардеробные, ванную, холл и коридор. Такая планировка позволяет комфортно работать и принимать гостей на первом этаже, сохраняя тишину и уединение в спальнях наверху. Идеально для семьи с детьми или работающими из дома.

Особенности

  • Сейсмостойкий
  • Энергоэффективный
  • Быстрый монтаж
  • Технологичный
Звоните +7 (3012) 20-63-20
Пишите info@thermoblock.ru