Адрес офиса
Улан-Удэ, Н.Петрова 70 офис 309, "Бизнес Лайф"
Адрес производства
ул. Николая Нищенко 19а
Телефоны
+7 3012 206320
многоканальный
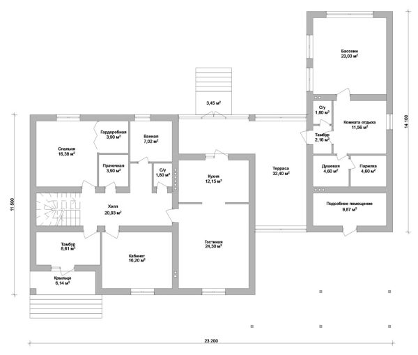
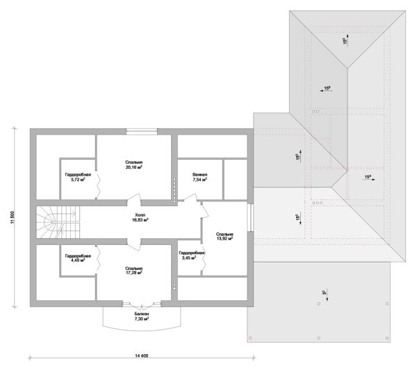
292,51 м² ThermoBlock комнат 26 спален 3 этажа 1.5 санузла 3 терасса

Проект дома F-008

Дом из термоблоков с полноценной зоной отдыха и водными процедурами. Первый этаж включает гостиную, кухню, кабинет, спальню, холл, ванную, санузел, тамбур, крыльцо, гараж, прачечную, а также бассейн, комнату отдыха, душевую, подсобное помещение. Второй этаж отведён под галереи, жилые комнаты (вероятно, спальни) и балкон. Наличие бассейна, комнаты отдыха и душевой делает дом идеальным для семей, ценящих здоровый образ жизни и релаксацию прямо у себя дома. Компактный гараж дополняет функциональность.

Особенности

  • Сейсмостойкий
  • Энергоэффективный
  • Быстрый монтаж
  • Технологичный
Звоните +7 (3012) 20-63-20
Пишите info@thermoblock.ru