Адрес офиса
Улан-Удэ, Н.Петрова 70 офис 309, "Бизнес Лайф"
Адрес производства
ул. Николая Нищенко 19а
Телефоны
+7 3012 206320
многоканальный
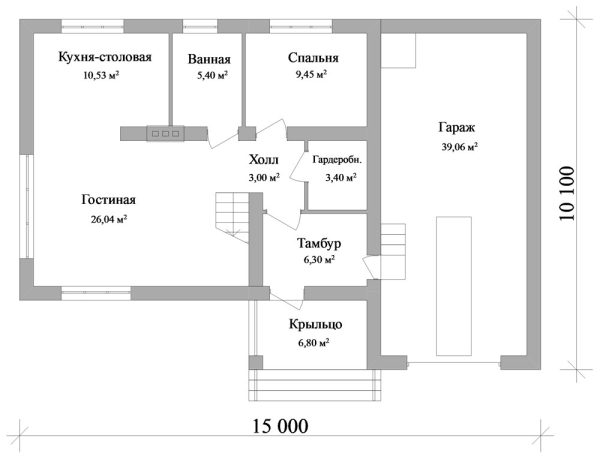
163,39 м² ThermoBlock комнат 14 спален 4 этажа 2 санузла 2 гараж терасса

Проект дома F-013

Компактный дом из термоблоков, объединяющий жилые и технические помещения. В составе дома: гостиная, кухня-столовая, две спальни, кабинет, ванная, два холла, гардеробная, тамбур, крыльцо, гараж и большая терраса. Зонирование предполагает наличие приватной (спальни, кабинет) и общей (гостиная, кухня-столовая, терраса) зон. Наличие гаража и террасы добавляет удобства для ежедневного проживания и отдыха на свежем воздухе. Планировка подходит для небольшой семьи с автомобилем.

Особенности

  • Сейсмостойкий
  • Энергоэффективный
  • Быстрый монтаж
  • Технологичный
Звоните +7 (3012) 20-63-20
Пишите info@thermoblock.ru