Адрес офиса
Улан-Удэ, Н.Петрова 70 офис 309, "Бизнес Лайф"
Адрес производства
ул. Николая Нищенко 19а
Телефоны
+7 3012 206320
многоканальный
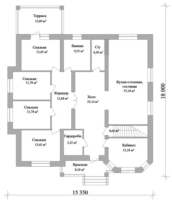
319,56 м² ThermoBlock комнат 21 спален 4 этажа 1.5 санузла 1 гараж терасса

Проект дома F-015

Практичный дом из термоблоков с продуманным хранением и зонированием. Цокольный этаж полностью отведён под технические нужды: здесь расположены гараж, котельная и шесть кладовых/подсобных помещений, соединённых коридорами. Первый этаж включает объединённую кухню-столовую с гостиной, спальню, кабинет, холл, ванную, санузел, гардеробную, крыльцо и террасу. Такая планировка позволяет максимально разгрузить жилое пространство, оставив все хозяйственные и складские помещения внизу. Идеально для семьи, ценящей порядок и функциональность.

Особенности

  • Сейсмостойкий
  • Энергоэффективный
  • Быстрый монтаж
  • Технологичный
Звоните +7 (3012) 20-63-20
Пишите info@thermoblock.ru