Адрес офиса
Улан-Удэ, Н.Петрова 70 офис 309, "Бизнес Лайф"
Адрес производства
ул. Николая Нищенко 19а
Телефоны
+7 3012 206320
многоканальный
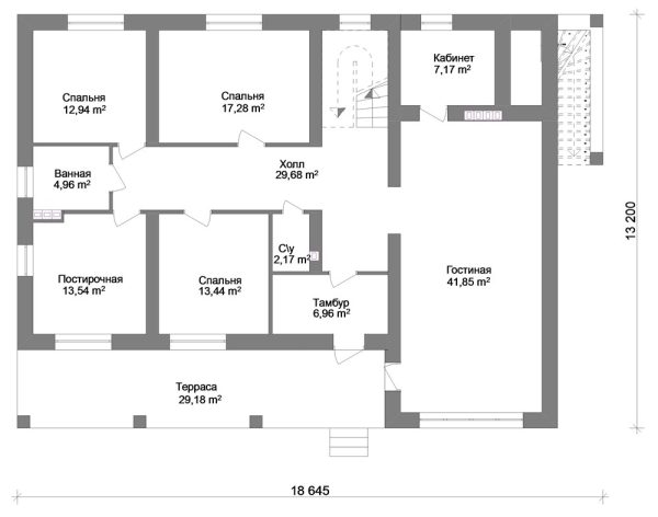
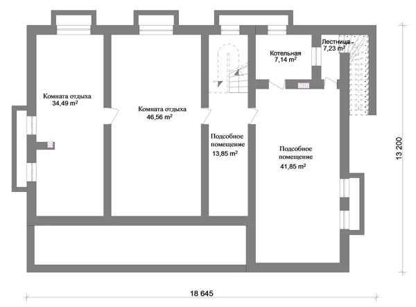
298,94 м² ThermoBlock комнат 15 спален 3 этажа 1 санузла 1 терасса

Проект дома F-016

Функциональный дом из термоблоков с удобным разделением на дневную и техническо-рекреационную зоны. Первый этаж включает просторную гостиную, кабинет, две спальни, ванную, постирочную, тамбур и терассу. Цокольный этаж отведён под зону отдыха и хознужды: здесь расположены две комнаты отдыха, котельная и два подсобных помещения. Такая планировка обеспечивает тишину в жилой части и позволяет комфортно принимать гостей, не загромождая основные помещения. Подходит для семьи, ценящей порядок и отдельное пространство для досуга.

Особенности

  • Сейсмостойкий
  • Энергоэффективный
  • Быстрый монтаж
  • Технологичный
Звоните +7 (3012) 20-63-20
Пишите info@thermoblock.ru