Адрес офиса
Улан-Удэ, Н.Петрова 70 офис 309, "Бизнес Лайф"
Адрес производства
ул. Николая Нищенко 19а
Телефоны
+7 3012 206320
многоканальный
325,00 м² ThermoBlock комнат 13 спален 4 этажа 1 санузла 1 гараж терасса

Проект дома F-006

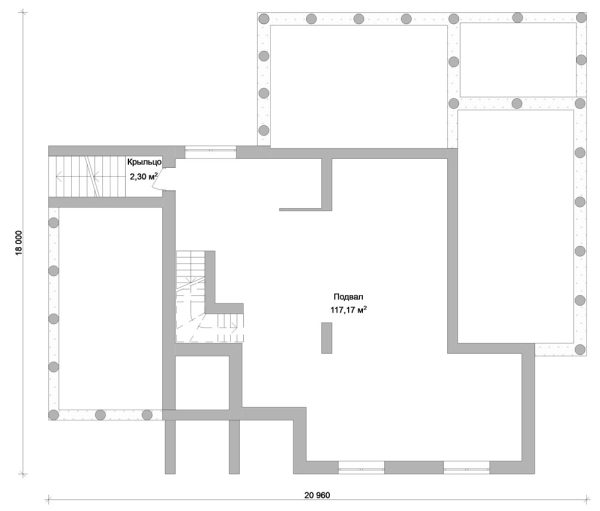
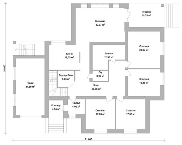
Комфортный дом из термоблоков с продуманной планировкой для большой семьи. В наземной части расположены просторная гостиная с выходом на террасу, кухня, четыре спальни, ванная комната, отдельный санузел, гардеробная, холл, тамбур, два крыльца и гараж. Подвал площадью 117 м² предоставляет огромные возможности для хранения, мастерской или дополнительной зоны отдыха. Такое решение позволяет максимально разгрузить жилые помещения, оставив внизу всё, что не требуется ежедневно. Идеальный вариант для семьи с большим количеством вещей или хобби.

Особенности

  • Сейсмостойкий
  • Энергоэффективный
  • Быстрый монтаж
  • Технологичный
Звоните +7 (3012) 20-63-20
Пишите info@thermoblock.ru