Адрес офиса
Улан-Удэ, Н.Петрова 70 офис 309, "Бизнес Лайф"
Адрес производства
ул. Николая Нищенко 19а
Телефоны
+7 3012 206320
многоканальный
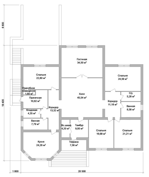
556,93 м² ThermoBlock комнат 15 спален 4 этажа 1 санузла 2 терасса

Проект дома F-007

Просторный дом из термоблоков с чётким зонированием. В составе дома: гостиная, кухня, три спальни, два холла, два коридора, две ванные комнаты, тамбур, прачечная и подсобное помещение. Планировка позволяет комфортно разместить семью, выделив общую зону (гостиная, кухня, холлы) и приватную (спальни, ванные). Наличие прачечной и подсобки добавляет бытового удобства. Подходит для постоянного проживания. существует, вероятно, цокольное помещение площадью 288 м² без детализации комнат.

Особенности

  • Сейсмостойкий
  • Энергоэффективный
  • Быстрый монтаж
  • Технологичный
Звоните +7 (3012) 20-63-20
Пишите info@thermoblock.ru